Hi there! How can we help you today?
Take Advantage of Limited-Time Offers on Luxury Homes with Stunning Features!
Join Us for Exclusive Open House Events This Weekend and Find Your Perfect Home!
Explore Our Exciting New Property Listings Now Available in Prime Locations!
Discover Your Dream Home with Our Latest Listings and Personalized Services!
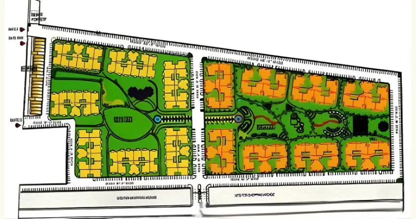
Silver City Greens stands as one of the prominent real estate projects in Zirakpur, developed by Silvercity Developers, a trusted name among real estate companies in Zirakpur. Located on the Ambala-Chandigarh Expressway, this residential society in Zirakpur offers spacious 3 and 4 BHK apartments designed for comfortable living. As part of the thriving Zirakpur real estate scene, it caters to those searching for new housing projects in Zirakpur or upcoming residential projects in Punjab. With its ready-to-move status, it appeals to buyers interested in high-rise projects in Zirakpur or residential plots in Zirakpur by GMADA. The project emphasizes quality construction, making it a safe and family-friendly option in this growing area near Chandigarh.
Silver City Greens incorporates vastu principles thoughtfully, with north-east facing entrances to invite prosperity and positive vibes. Bedrooms are positioned for optimal rest, kitchens in the south-east for health, and open spaces allowing free energy flow. This makes it a preferred choice for vastu-conscious buyers in Zirakpur real estate projects, aligning with traditional Indian architecture while fitting modern high-rise society in Zirakpur needs.



| Floor Type | Super Area (Sq. Ft.) | Carpet Area (Sq. Ft.) | Balcony Area (Sq. Ft.) | Approx. Pricing (INR) |
|---|---|---|---|---|
| 3 BHK | 1623 | 1136 | 100 | 51,00,000 |
| 4 BHK | 1700 | 1190 | 120 | 90,90,000 |
Silvercity Developers, a leading real estate company in Zirakpur, has built a reputation for quality through ISO 9001 and 14001 certifications, emphasizing sustainable and efficient construction. Though specific awards for this project aren't highlighted, the builder's portfolio includes successful deliveries like Silver City Heights, earning praise for timely completions and customer satisfaction in Zirakpur commercial projects and residential developments.
“Construction Update: Launched October 2006, completed March 2009.”
Explore nearby amenities to precisely locate your property and identify surrounding conveniences, providing a comprehensive overview of the living environment and the property's convenience.
Selling
Hi there! How can we help you today?