Hi there! How can we help you today?
Explore Our Exciting New Property Listings Now Available in Prime Locations!
Discover Your Dream Home with Our Latest Listings and Personalized Services!
Join Us for Exclusive Open House Events This Weekend and Find Your Perfect Home!
Take Advantage of Limited-Time Offers on Luxury Homes with Stunning Features!
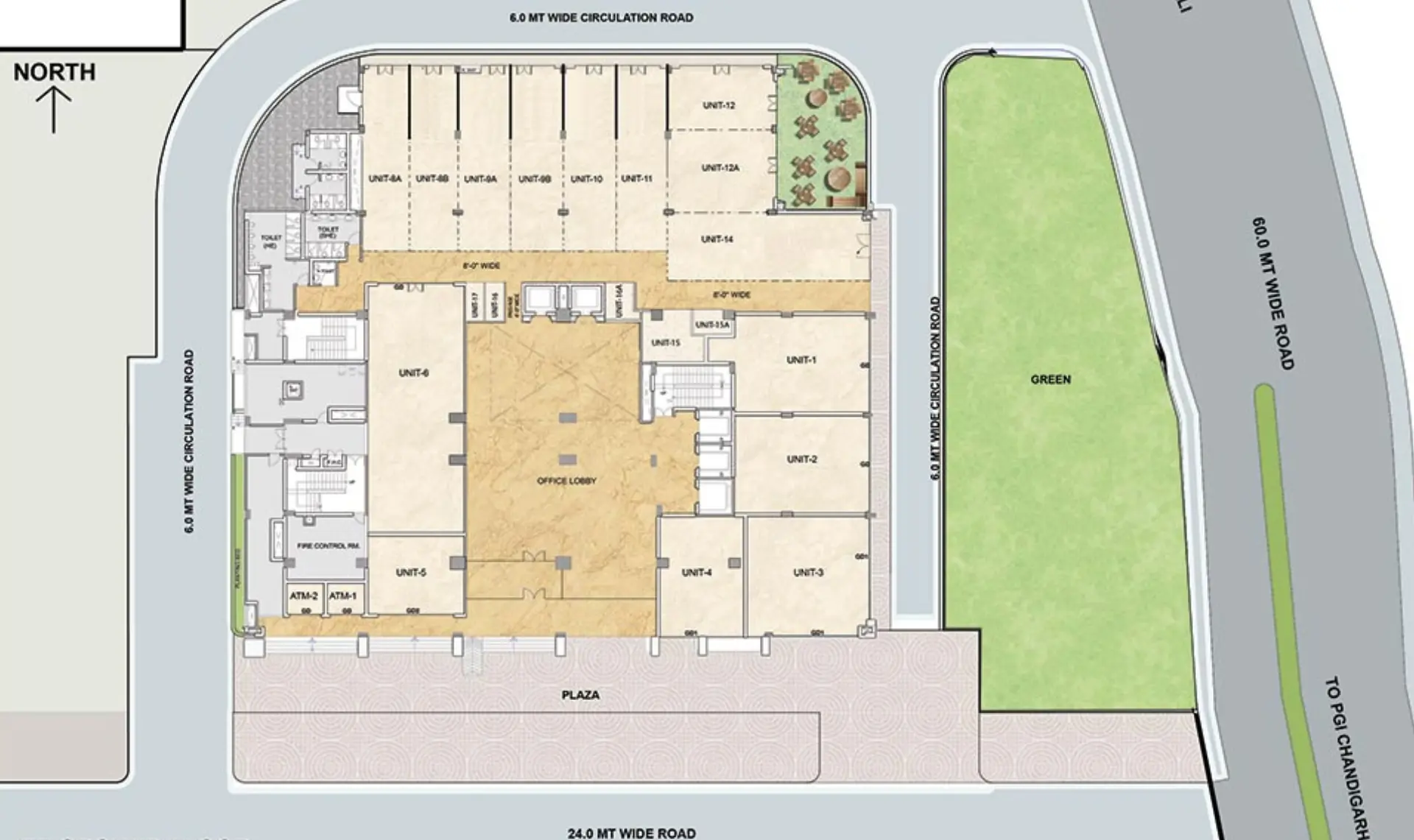
India Trade Tower emerges as a flagship New Chandigarh real estate project, spanning 3.5 acres with a focus on commercial premium office spaces. This under-construction commercial project in New Chandigarh offers versatile spaces for businesses, designed for modern operations with emphasis on quality construction and community features. As a highlight among commercial projects in New Chandigarh or real estate commercial projects in New Chandigarh, it prioritizes amenities like ample parking and green spaces for a balanced work environment. Located in Sector 83 near Mullanpur Garibdas, it ensures easy access to urban hubs while offering tranquility, rivaling the appeal of top 10 residential projects in Mumbai in design but tailored for commercial use. With RERA number PBRERA-SAS80-PC0006 guaranteeing compliance, it's a dependable choice for buyers in real estate companies in New Chandigarh exploring premium options in this New Chandigarh project.
India Trade Tower integrates Vastu-friendly elements in its designs to promote positive energy and balance. Orientations support natural harmony, appealing to buyers who value traditional balance in their New Chandigarh real estate projects.

| Floor Type | Super Area (Sq. Ft.) | Carpet Area (Sq. Ft.) | Balcony Area (Sq. Ft.) | Approx. Pricing (INR) |
|---|---|---|---|---|
| Office Space | 440 | 300 | N/A | 28.6 Lac |
| Office Space | 588 | 400 | N/A | 38.22 Lac |
| Retail Unit | 1358 | 1000 | N/A | 88.27 Lac |
Developed by Omaxe Ltd, a reputable real estate company in New Chandigarh known for innovative commercial developments. While no prominent awards are noted for this project, the builder is praised for quality craftsmanship and timely deliveries in New Chandigarh real estate projects, with a focus on sustainable constructions.
“Started 2020; expected finish 2025”
Explore nearby amenities to precisely locate your property and identify surrounding conveniences, providing a comprehensive overview of the living environment and the property's convenience.
Building
Hi there! How can we help you today?